Homepage Everyday Adventures Work Visit! Contact

We're buying a house!

Since we've decided to enroll the kids at the Western Academy of Beijing (WAB) in the fall (stay tuned for details on THAT decision!), we also decided to reconsider our housing situation. We chose to live where we do right now because the apartment building is located next to the kids’ school. It turned out to be a wise choice, since getting to school in the morning and coming home at the end of the day are both incredibly easy.

The new school is located in an eastern suburb of Beijing called Shunyi. It's sort of like the Westchester County of Beijing. Shunyi is filled with gorgeous developments of brand new high-end houses, which cluster around the top international schools in the city. Most foreign families with children who attend those schools choose to live out in Shunyi, so it's easier for the kids. The parents commute to work each day along a superhighway that gets you downtown in about 45 minutes.

This arrangement made sense to us, so I spent several weeks researching housing options in Shunyi. I was surprised by what I've found, and learned a great deal about how residential real estate works (or doesn't yet) in Beijing. Stay tuned for more details...

The bottom line is that we’ve decided to purchase a new home! It's located right across the street from the WAB school. As they say in every real estate class, the three most important rules in real estate are "location, location, location." We feel good about playing by these rules. Read on for a quick description of our new place.

The housing development is called "Lane Bridge." It's located just outside Beijing's fifth ring road, which circumnavigates the city. As the following map shows, the development is located right off the airport expressway, which makes it very convenient.

The following map provides a more detailed look at the entire Shunyi area:

As you can see, Lane Bridge is the one closest to the city. This difference in location cuts off about 15 to 20 minutes from the commute, since the traffic north of Lane Bridge gets pretty bad (given the number of developments to the north, as well as the proximity to the airport). If you pull out your magnifying glass, you can see the names of some of the other developments: evocative names such as Yosemite, Beijing Riviera, and River Garden. Might also notice that each of these places commence monthly rents north of 5000 US dollars for a three-bedroom place!

Lane Bridge is a new development from one of the largest and oldest real estate companies in China. It's also the only one that is managed by an American management company (in this case CB Richard Ellis). The development is nicely laid out, with lots of foliage and wide streets. It makes some of the old developments look positively draconian, since their houses are incredibly close together, lack any kind of yard, and are laid out along a grid of right-angled streets.

The unit we’re buying is the only one left in phase 1. It was already sold some time ago, but the buyer’s financing fell through. Our crack agent was able to grab it, and keep the original price pricing for phase 2 is already 3 - 5% higher than phase 1).

We’ll supplement these artist renderings with some actual photographs, but these illustrations are actually reasonably accurate.

Of course, it's wintertime now, so there aren't leaves on the trees. Nevertheless, it's easy to see the benefit of the street designs, which are unusually wide and well-planted for China:

Our house is one half of a so-called "semi-detached" unit. It's surrounded by nice plantings, and has (for China) a huge backyard that can be fenced in.

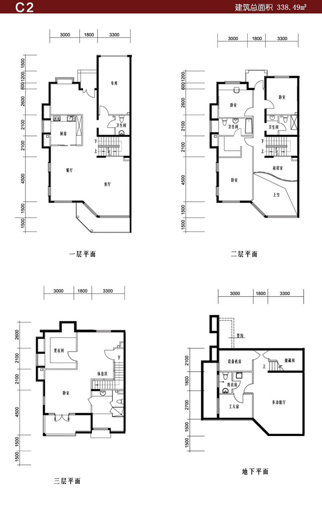
Once you enter the house, you have no idea that it shares a common wall. Here's the floor plan for our unit:

We'll be updating this site with more photos as we take them. We wanted to get this info up right away...

Now, some shots of the interior of the house!

 


Homepage Everyday Adventures Work Visit! Contact